rendez-vous : 514-592-8828

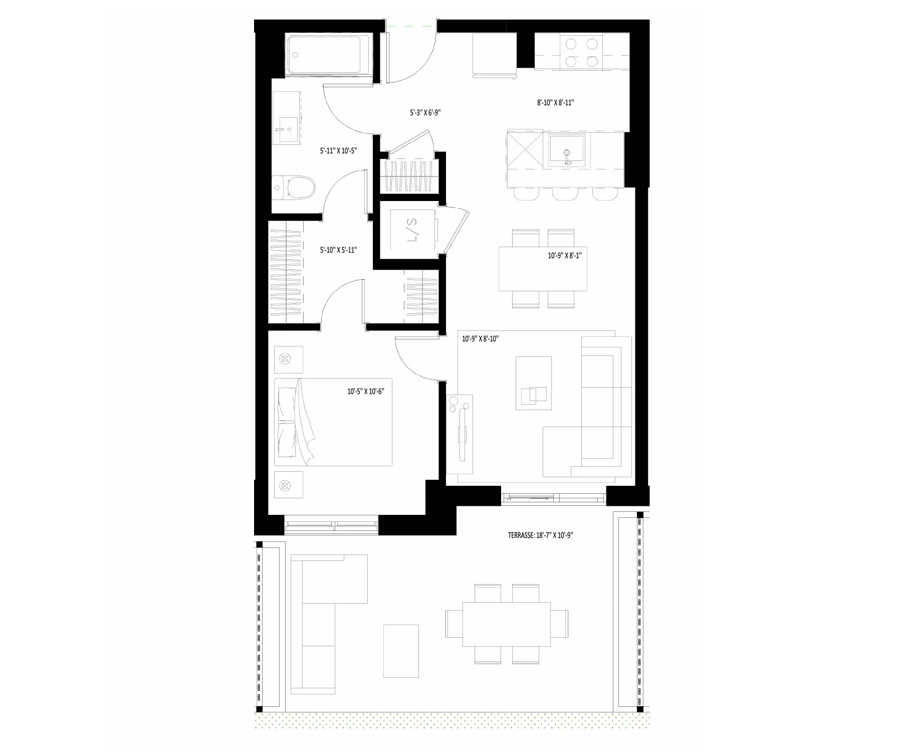
Unité 112
Unité modèle
1 635 $ / mois*

*Certaines conditions s’appliquent

• Nombre de chambre(s) : 1
• Nombre de salle(s) de bain : 1
• Superficie de l'unité : 601 pieds carrés
• Superficie de la terrasse : 233 pieds carrés