rendez-vous : 514-592-8828

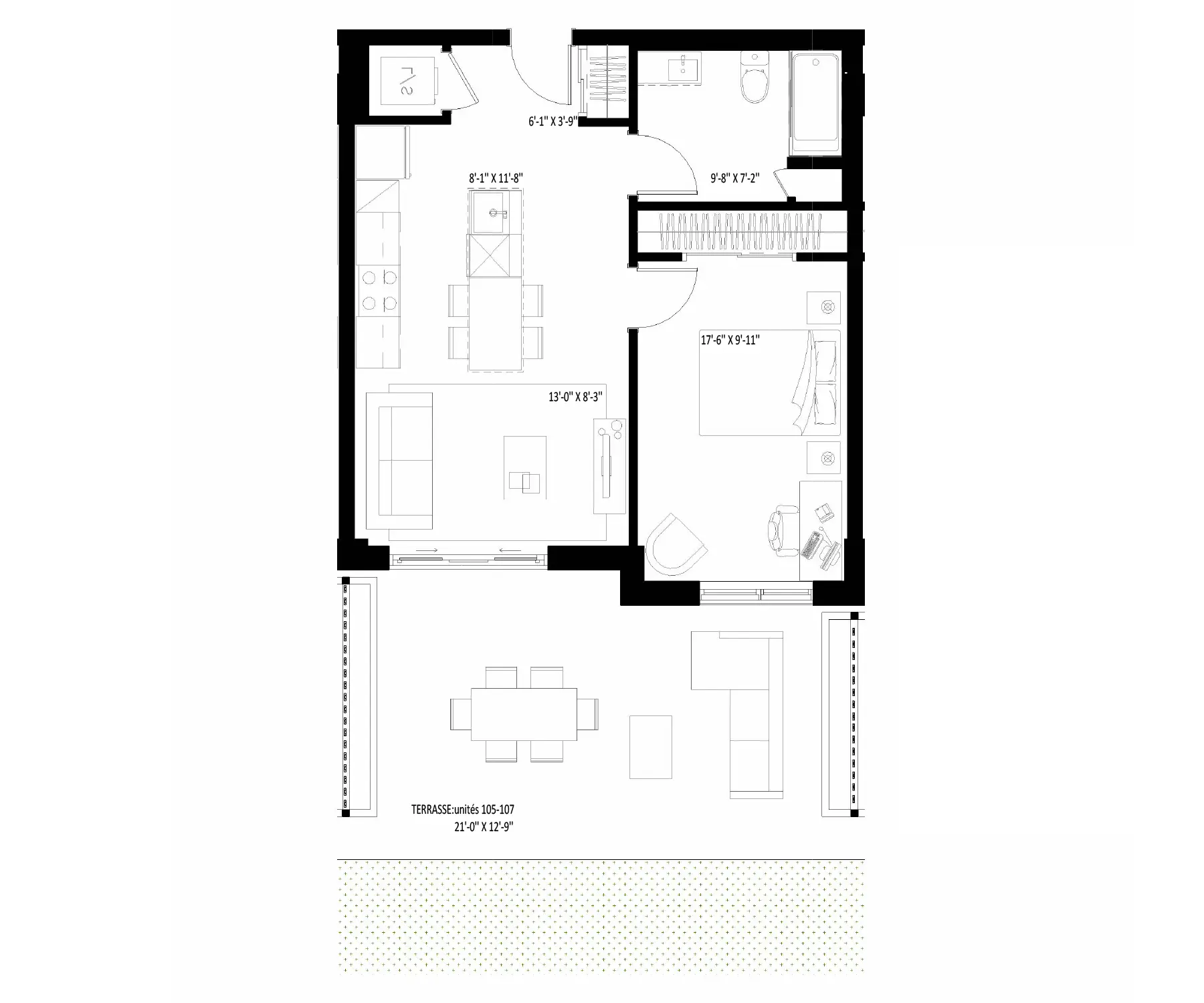
Unité 105
Disponible
À partir de 1 535 $ / par mois
• Nombre de chambre(s) : 1
• Nombre de salle(s) de bain : 1
• Superficie de l'unité : 621 pieds carrés
• Superficie de la terrasse : 310 pieds carrés