rendez-vous : 514-592-8828

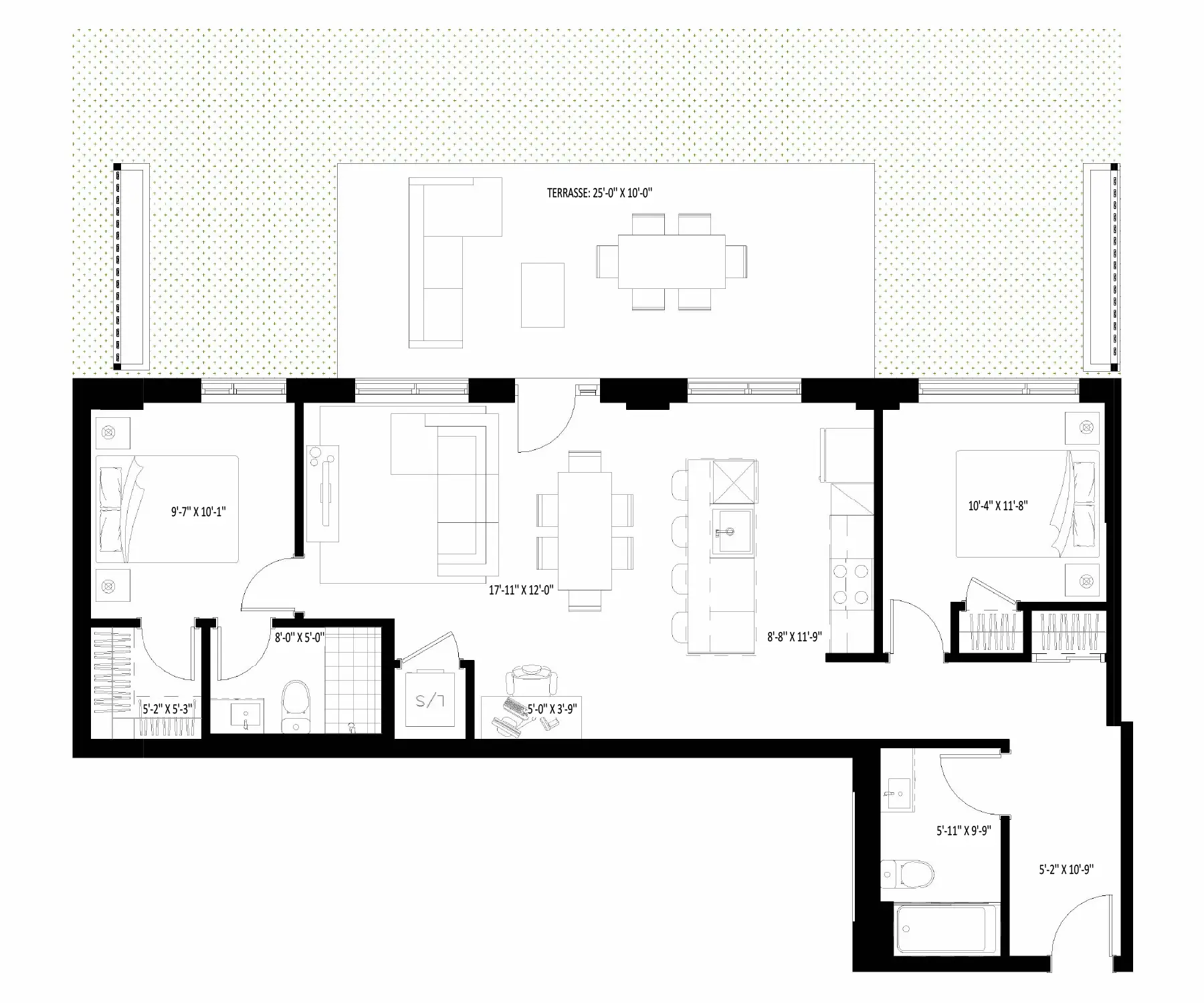
Unité 101
Disponible
À partir de 1 905 $ / par mois
• Nombre de chambre(s) : 2
• Nombre de salle(s) de bain : 2
• Superficie de l'unité : 949 pieds carrés
• Superficie de la terrasse : 250 pieds carrés